‘ALANI
a grand fully furnished 4-bedroom, 3.5-bathroom residence that combines luxury, versatility, and breathtaking ocean views.
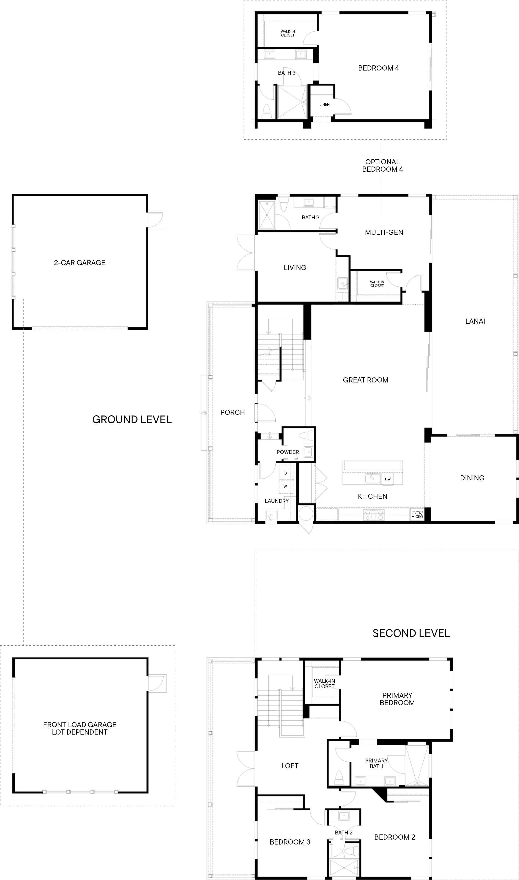
The Great Room features wood-beamed ceilings, a striking statement wall, and stone floors that create a dramatic, yet warm, centerpiece. The gourmet kitchen is crafted with rich materials and finishes, seamlessly connecting to the living space and opening onto a covered lanai. From here, enjoy lush landscaped grounds, a fully equipped bar, and sweeping ocean views. A bedroom on the main floor offers privacy and convenience.
Upstairs, three additional bedrooms have been positioned to maximize views from every vantage. Above the garage, a versatile ‘Ohana provides flexible space for extended family, guests, or a private retreat. The home’s impressive curb appeal is enhanced by a grand driveway and walk-up entrance, while the combination of balconies and outdoor spaces ensures that every angle embraces the beauty of its surroundings.
‘ALANI
3.5 bathrooms2,883 s.f.
635 s.f. lanai
514 S.F. Ohana
Virtual Tour
Floorplan
FEATURES
AND FINISHES
SIGNATURE KITCHENS
Designer Faucets
Quartz Countertops
Waterfall Edge Island (optional)
Full-Height Slab Backsplash
LUXURY APPLIANCE SUITES
36" Induction Cooktop
36" Stainless Chimney Hood
Café Ultra-Wash Dishwasher (44 dBA)
30" Convection + Advantium Combination Wall Oven
Kitchen Appliance Packages Available in Three Luxury Brands:
• Café
• GE Monogram
• Thermador
GE-brand Washer & Dryer
SPA-INSPIRED BATHROOMS
Owner’s Suite
Luxury Shower System
Freestanding Tub
Full-Height Porcelain Tile
Frameless Glass Enclosure
CUSTOM CABINETRY
Bellmont Euro-Style Frameless Cabinetry
Premium Upgrades
Floating Vanities in All Baths
Laundry Room Cabinetry Included
ARCHITECTURAL DOORS & WINDOWS
Custom Wood Sapele Front Door
ThermaTru Exterior Patio & Balcony Doors
Andersen Multi-Slide Patio Door
Emtek Door Hardware
Insulated Fiberglass Garage Door
INTERIOR FINISHES
Drywall Finish Options
Sherwin-Williams Premium Paint System
Architectural Details
Phase one Available Homes.
Model homes and sales center
wednesday-sunday 10am-4pm
5501 Nalu Pl.
Equal Housing Opportunity Statement: We are pledged to the letter and spirit of U.S. policy for the achievement of equal housing opportunity throughout the Nation. We encourage and support an affirmative advertising and marketing program in which there are no barriers to obtaining housing because of race, color, national origin, religion, gender, sexual orientation, familial status, or disability. Prices, square footages, features, availability, terms and incentives are subject to change without notice. Brokerage provided by eXp Realty Hawaii License #RB-21841 | EQUAL HOUSING OPPORTUNITY.


