Koa
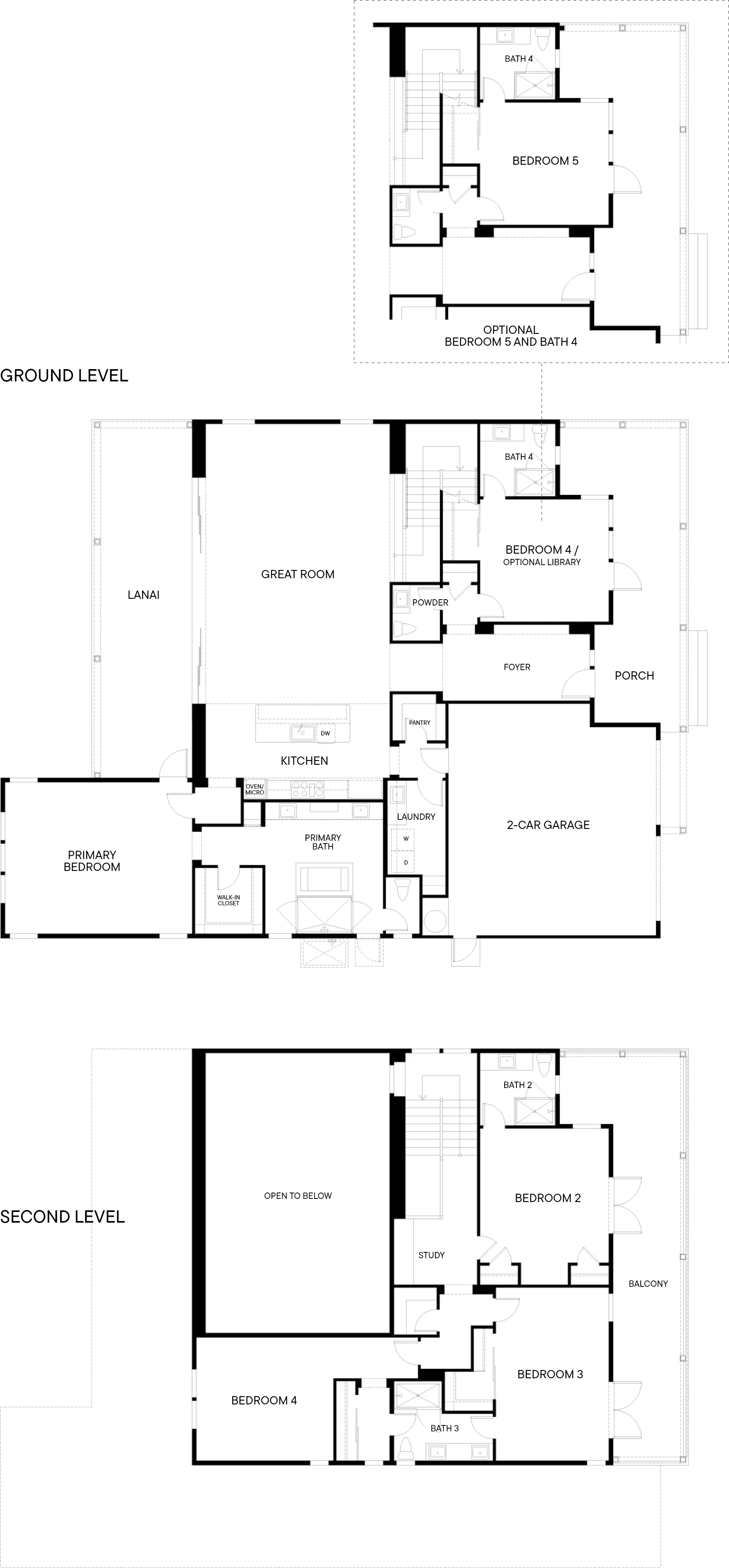
a fully furnished 4-bedroom, 4.5 bathroom residence that blends Hawaiian-inspired architecture with indoor comforts and outdoor retreats.
The Great Room features wood-paneled vaulted ceilings and expansive windows, with a full-wall sliding door that opens directly onto a covered lanai. This seamless transition brings the outdoors in, revealing a private pool, lush landscaping, and a seating area perfect for dining, lounging, or entertaining. The gourmet kitchen, with natural stone countertops, warm wood finishes, and a spacious pantry, flows effortlessly into the living area. Two first-floor bedrooms with walk-in closets provide private retreats, while a convenient laundry area adds functionality. Upstairs, two additional bedrooms and a private study offer versatile spaces, complemented by a balcony overlooking the neighborhood.
Designed to maximize indoor-outdoor living, Koa also offers a wrap-around balcony with views of the quiet enclave below, along with a 3-car garage. Thoughtfully designed for comfort, elegance, and the quintessential Hawaiian lifestyle, this residence is a true island sanctuary in one of Hawaii’s most coveted communities.
Koa
4.5 bathrooms3,155 s.f.
1,034 s.f. lanai
Virtual Tour
Floorplan
FEATURES
AND FINISHES
SIGNATURE KITCHENS
Designer Faucets
Quartz Countertops
Waterfall Edge Island (optional)
Full-Height Slab Backsplash
LUXURY APPLIANCE SUITES
36" Induction Cooktop
36" Stainless Chimney Hood
Café Ultra-Wash Dishwasher (44 dBA)
30" Convection + Advantium Combination Wall Oven
Kitchen Appliance Packages Available in Three Luxury Brands:
• Café
• GE Monogram
• Thermador
GE-brand Washer & Dryer
SPA-INSPIRED BATHROOMS
Owner’s Suite
Luxury Shower System
Freestanding Tub
Full-Height Porcelain Tile
Frameless Glass Enclosure
CUSTOM CABINETRY
Bellmont Euro-Style Frameless Cabinetry
Premium Upgrades
Floating Vanities in All Baths
Laundry Room Cabinetry Included
ARCHITECTURAL DOORS & WINDOWS
Custom Wood Sapele Front Door
ThermaTru Exterior Patio & Balcony Doors
Andersen Multi-Slide Patio Door
Emtek Door Hardware
Insulated Fiberglass Garage Door
INTERIOR FINISHES
Drywall Finish Options
Sherwin-Williams Premium Paint System
Architectural Details
Phase one Available Homes.
Model homes and sales center
wednesday-sunday 10am-4pm
5501 Nalu Pl.
Equal Housing Opportunity Statement: We are pledged to the letter and spirit of U.S. policy for the achievement of equal housing opportunity throughout the Nation. We encourage and support an affirmative advertising and marketing program in which there are no barriers to obtaining housing because of race, color, national origin, religion, gender, sexual orientation, familial status, or disability. Prices, square footages, features, availability, terms and incentives are subject to change without notice. Brokerage provided by eXp Realty Hawaii License #RB-21841 | EQUAL HOUSING OPPORTUNITY.


